MERCED ST FIRE REBUILD

Special care was taken on this local contractor’s short term investment property because it will be their long term retirement home in the wine country. It is a fire rebuild that benefits from early discussions with the local authorities to avoid design review yet improve the aesthetic and function of the home.

Currently under permitting review, January 2026

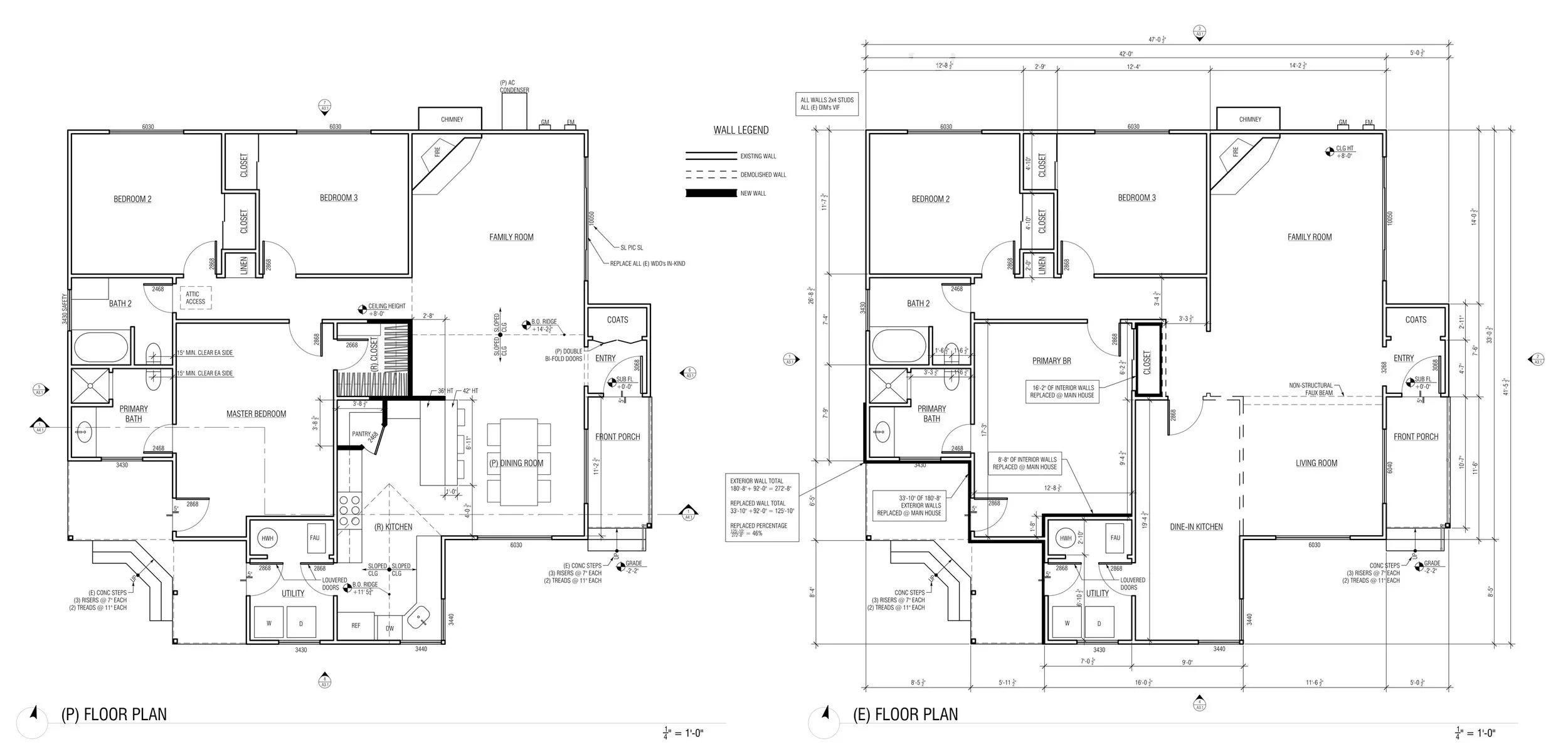
CHART THE BEST COURSE

The best path forward reveals itself with proper research, coordination, and communication. This project approaches, but remains short of key thresholds with the Building, Planning, and Fire Departments. This creates the smoothest design process and optimizes for the best design outcome.

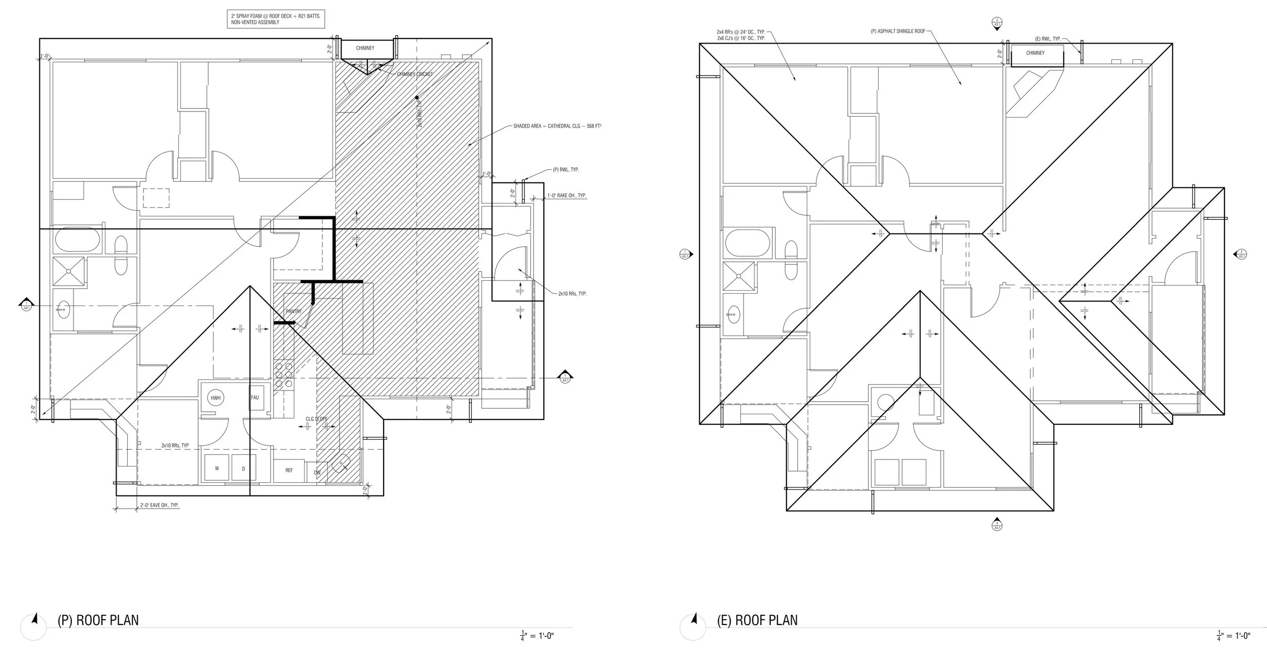
DESIRES DRIVE DESIGN

The client wanted vaulted ceilings. By collaborating with the Structural Engineer and communicating with local authorities, the roof is structured to optimize the vaulted ceilings and we avoided design review.

EFFICIENT DRAFTING

We pride ourselves on the speed of our draft work, which results from a system of thorough checklists and systematic quality control measures.

DETAILED DESIGN

Details are key to successful building operation and durability.

Previous
Previous

B St Renovation

Next
Next

Front Porch Historic Preservation