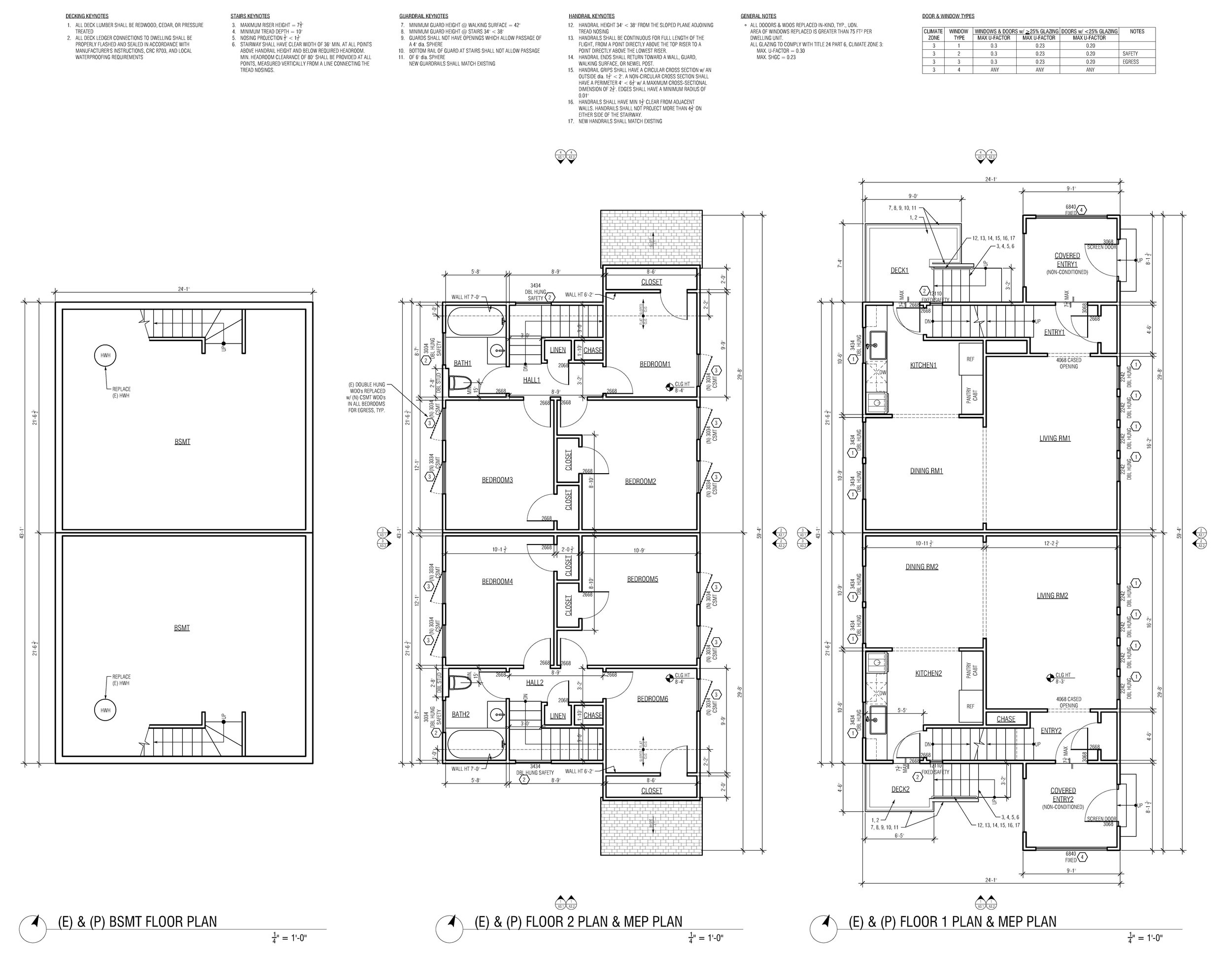
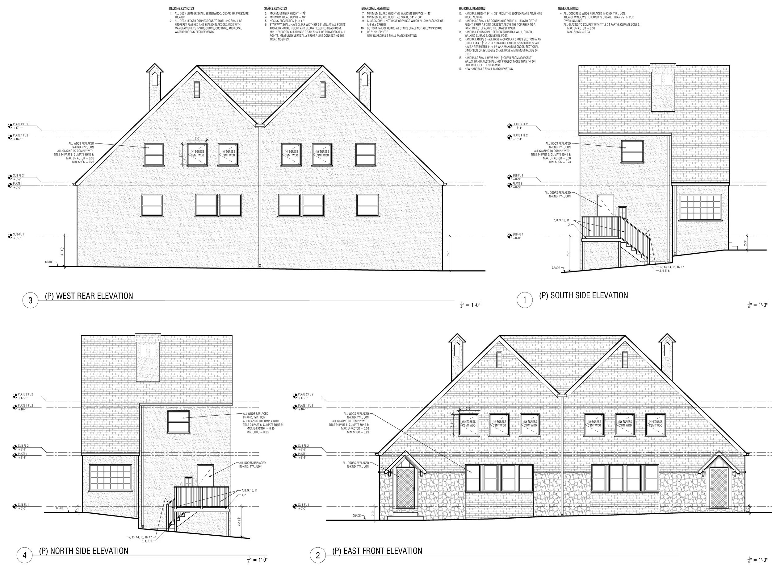
B STreet RENOVATION

A local developer needed to make make their duplex renovation copasetic with city regulations. JKJang Design provided swift and thorough service to ensure the fastest turn around with the local planning and building department.

TRUST OUR EXPERIENCE

These plans were submitted to the local authority and passed without any need for revisions.

TRUST OUR QUALITY

Clean, organized, and readable plans improve communication, timelines, and final results.

TRUST OUR DESIGN

Improving the mechanical, electrical, & plumbing layouts is good for developer and tenant.

Previous
Previous

Valley Glen Garage to ADU Conversion

Next
Next

Merced St Fire Rebuild