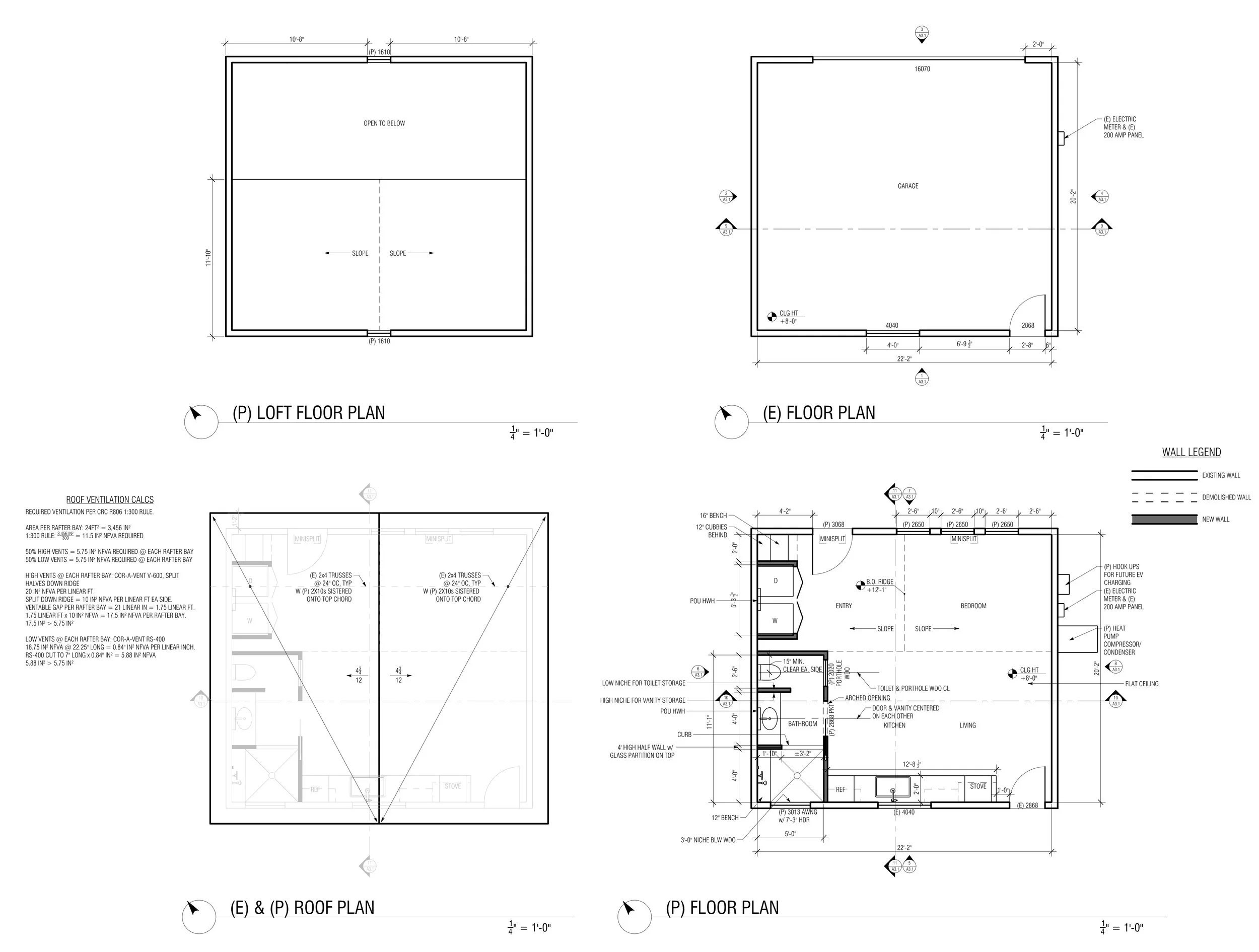
valley glen garage to adu conversion

This client came to JKJang Design to bring their ideas to reality after decades of designing it in their head. After multiple meetings of detailed discussions, this garage-turned-ADU will feature vaulted ceilings, a cozy attic loft, and all the details exactly how the client wants them.

Currently under permitting review, January 2026

listening = learning

Taking seriously the wishes, desires, and preferences of the client is the greatest skill we possess at JKJang Design. We are always learning from our clients.

MAKING THE RIGHT CALL

Identifying tough choices early avoids costly rework and backtracking after initial permit submittal. This client chose to hire a structural engineer early, rather than compromise on the design they wanted.

Next
Next

B St Renovation